TH環鏈式斗式提升機是環形料條帶動料斗提升物料的設備,采用混合式或重力卸料,挖取式裝料,中部機殼分單、雙通道兩種形式為機內重錘箱恒力自動張緊。鏈輪采用可換輪緣組合式結構。使用壽命長,輪緣更換工作簡便。適用于輸送粉狀、粒狀及小塊狀的無磨琢及磨琢性小的物料,物料溫度在250℃以下。

環鏈式斗式提升機有兩種料斗:
Zh型(中深斗)一般適用于輸送濕的,易結塊的,較難拋出的物料,如濕砂、型砂、化肥、堿粉等。
Sh型(深斗)適用于輸送干燥的,松散易于拋出的物料,如水泥、熟料、碎石、煤塊等,其輸送量也比Zh型的大。

TH型環鏈式斗式提升機適用于向上輸送松散密度P<1.5t/m3粉狀、粒狀和小塊狀的無磨琢性和半磨琢性散狀物料,如煤、砂、焦末、水泥、碎礦石等。本機的特點為快速離心卸料:并采用環鏈為牽引構件,故不適于輸送大塊磨琢性及掏取阻力大的物料。

單通道斗式提升機提升雞精
雙通道環鏈式斗式提升機提升砂石

1、輸送量大,相同斗寬的TH型與HL型相比,輸送量增大近一倍。
2、改進機型的提升輸送量比普通機型提高30%以上。提升高度可達40米。
3、牽引件為低合金鋼制造的高強度圓環鏈,經合理熱處理后,抗拉強度高,耐磨性好,使用壽命長。
4、采用了組裝式鏈輪。由輪體、輪緣用高強度螺栓聯接而成。在鏈輪磨損到一定程度后,可擰下螺栓,拆換輪緣,更換方便,且節約拆料、降低了維修費;
5、下部采用了重錘杠桿式張緊裝置,即可實現自動張緊。一次安裝后不需調整,又可以保持恒定的張緊力,從而保證機器的正常運轉,避免了打滑或脫鏈。
6、傳動裝置安裝了逆止器,有效防止"倒料"的發生。



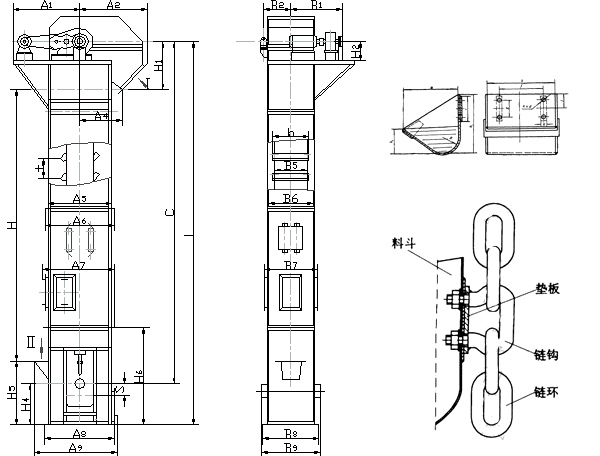
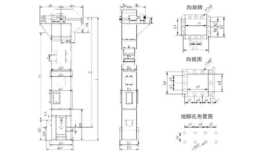
TH環鏈式斗式提升機由運行部件、驅動裝置、上部裝置、中部機殼、下部裝置組成。
運行部件---由料斗和專用圓環鏈條組成,鏈條抗拉強度高、耐磨性好。
驅動裝置---采用多種驅動組合驅動,(依用戶實際需要而定).驅動平臺上裝有檢修架和欄桿。驅動制裝置分左和右裝兩種。
上部裝置---安裝有軌道(雙排鏈)、逆止器、卸料口裝有防回料橡膠板。
中間節---部分中間節裝有軌道(雙鏈),以防止鏈條工作中擺動。
下部裝置---安裝有自動張緊裝置。
TH環鏈式料斗把物料從下面的儲藏中舀起,隨著輸送帶或鏈提升到頂部,繞過頂輪后向下翻轉,然后將物料傾入接受槽內,鏈傳動的斗式提升機一般裝有兩條平行的傳動鏈,上或下面有一對傳動鏈輪,下或上面是一對改向鏈輪。


| 型號 | TH160 | TH200 | TH250 | TH315 | TH400 | TH500 | TH630 | |||||||||||
| 料斗形式 | ZH | SH | ZH | SH | ZH | SH | ZH | SH | ZH | SH | ZH | SH | ZH | SH | ||||
| 輸送量m³/h | 普通型 | 15 | 25 | 18 | 29 | 31 | 48 | 35 | 60 | 60 | 94 | 75 | 118 | 114 | 185 | |||
| 改進型 | - | - | - | - | - | - | 46 | 80 | 80 | 125 | 100 | 157 | 152 | 246 | ||||
| 料斗 | 斗寬mm | 160 | 200 | 250 | 315 | 400 | 500 | 630 | ||||||||||
| 斗容L | 1.2 | 1.9 | 1.5 | 2.4 | 3.0 | 4.6 | 3.75 | 6.0 | 5.9 | 9.5 | 9.3 | 15.0 | 14.6 | 23.6 | ||||
| 斗距mm | 普通型 | 500 | 512 | 688 | ||||||||||||||
| 改進型 | - | 384 | 516 | |||||||||||||||
| 鏈條 | 圓鋼 (直徑×節距)mm | 14×50 | 18×64 | 22×86 | ||||||||||||||
| 環數 | 普通型 | 9 | 7 | 7 | ||||||||||||||
| 改進型 | - | 5 | 5 | |||||||||||||||
| 料斗運行速度m/s | 1.2 | 1.4 | 1.5 | |||||||||||||||
| 主鏈輪節圓直徑mm | 300 | 365 | 520 | 630 | 710 | 800 | 900 | |||||||||||
| 主軸轉速r/min | 69.71 | 63.22 | 44.11 | 42.5 | 37.6 | 35.8 | 31.8 | |||||||||||
| 物料*大塊度mm | 20 | 25 | 30 | 35 | 40 | 50 | 60 | |||||||||||
注意事項
1、TH型環鏈式斗式提升機允許的較高溫度為250℃,如果溫度過高,會發生料斗和殼體變形,降低設備的工作性能和使用壽命;
2、如果發生提升機底部堆料造成設備無法運行的,這有可能是由于提升機瞬間提升量不足造成的;因此,選型時應按較大瞬間提升量來計算。

1、卸下環鏈式斗式提升機的上部殼體,在能夠的最高點吊起兩條鏈。
2、舉起被動軸并卸下吊斗及相應的吊鉤。
3、從環鏈式提升機上取下鏈以相反的順序,重復上述過程把已換好的鏈在地面上裝置并在吊斗旁展開。
4、為防止危險和麻煩,要確保在裝置最后一個吊斗時鏈不移動。
5、傳動帶張力用加速箱張緊器來實現,加速箱備有注油、排油和油量塞。軸承軸承座分為:驅動軸和腳軸,都備有潤滑脂嘴。或是裝有"長壽命潤滑"軸承。
6、提升機空負荷試運轉并緊固一切料斗牢固螺栓,并將其用電焊點固;
7、調整環鏈斗式提升機底部重錘位置并帶料試運轉。

Copyright ? 2008-2019螺旋輸送機廠家-新鄉市大漢振動機械有限公司 All Rights Reserved 版權所有
網站備案號:豫ICP備09002479號-47







