管式螺旋輸送機等采用ISO1050-75標準,設計制造符合ZBJ81005.1~2-88《 LS螺旋輸送機 》專業標準,提供低碳鋼(噴漆或鍍鋅)、不銹鋼和塑料三種材質,以適應客戶的要求和現場環境,管式螺旋輸送機管徑范圍100mm-1250mm,所有機器均可量身定制,以適應個性化需求。

大漢管式螺旋輸送機型號分為LS型和GX型:LS型螺旋輸送機適合水平和小傾角布置,傾角以不超過20°為宜,工作環境溫度通常為-20~50℃,輸送物料溫度小于200℃。GX型是LS型的換代產品,輸送傾角一般小于200°。
介紹視頻
垂直螺旋輸送機輸送飼料
管式螺旋輸送機每種類型都有其特定的應用場景和優勢。根據具體的物料特性和輸送需求,選擇適合的管式螺旋輸送機類型可以提高輸送效率和運行穩定性。

按輸送方式分類:
管式螺旋輸送機可根據輸送物料的性質及應用行業選擇碳鋼或不銹鋼材質,另外還可選擇有軸或無軸兩種設計(無軸更適合輸送潮濕的、帶粘性、糊狀等易纏繞的物料)。
水平管式螺旋輸送機:主要用于水平方向的輸送。
傾斜管式螺旋輸送機:可用于傾斜輸送,角度可根據需要調整。
垂直管式螺旋輸送機:適用于垂直方向的輸送,常見于提升物料的場合。
按材料分類:
不銹鋼管式螺旋輸送機:適用于對衛生要求高的行業,如食品、醫藥等。
碳鋼管式螺旋輸送機:常用于一般工業領域,具有良好的耐磨性和強度。
按結構分類:
有軸螺旋輸送機:適用于對輸送精度要求較高的場合。
無軸螺旋輸送機:安裝維護方便,適用于對輸送精度要求不高的場合。
管式螺旋輸送機用于輸送粉狀或顆粒狀物料,可水平、傾斜、垂直布置,廣泛應用在混凝土生產(用于粉煤灰,填料粉塵,硅粉),預混合的建筑材料(干灰泥,沙子,水泥,添加劑),玻璃加工(碳酸鈣,蘇打水,沙土)等),鑄造廠(砂,膨潤土)等。

管式螺旋輸送機在各個行業中都有廣泛的應用,主要包括但不限于以下領域:
食品加工行業:用于輸送糧食、糖果、蔬菜、肉類等食品原料或成品,如面粉的輸送、糖果的包裝等。
化工行業:用于輸送化工原料、顆粒、顏料、化肥等物料,如顆粒狀化工產品的輸送和混合。
建筑材料行業:用于輸送水泥、砂子、煤灰等建筑材料,如混凝土攪拌站的原料輸送。
冶金行業:用于輸送礦石、渣渣、礦粉等物料,如鐵礦石的輸送和處理。
農業領域:用于輸送飼料、谷物、肥料等農業物料,如飼料生產線中的原料輸送。
礦山行業:用于輸送煤炭、礦石、礦渣等物料,如煤礦的物料輸送系統。
能源行業:用于輸送木屑、生物質顆粒等能源原料,如生物質能源生產中的顆粒輸送。
管式螺旋輸送機具有許多優勢,使其成為許多行業中常用的物料輸送設備。以下是一些管式螺旋輸送機的優勢:

1.承載能力大、安全可靠,單機輸送長度可達60m。
2.可布置成水平或傾斜輸送形式(傾角GX型小于200、LS型小于150)
3.適應性強、安裝維修方便,出料端設有清掃裝置,進出料口位置布置靈活,壽命長。
4.整機體積小、轉速高、確保快速均勻輸送。
5.密封性好、外殼采用無縫鋼管制作,端部采用法蘭互相連接成一體,剛性好。
一般的管式螺旋輸送機通常由螺旋機本體、進出裝置、驅動裝置三大部分組成。

螺旋機本體由頭節、中間節、尾節三種組成。一般情況下,出廠總裝時將中間節按長度長短依次排列,中間節靠近頭節,相同長度的中間節則挨在一起,如果有特殊要求,則在訂貨時給出排列順序。
在頭節內裝有支推軸承承受軸向力,在中間節和尾節內裝有用軸承支承螺旋軸,此外,在尾節內還裝有可軸向移動的徑向軸承以補償螺旋軸長度的誤差和適應溫度的變化。螺旋面的形式有實體螺旋(S制法)和帶式螺旋(D制法)兩種。各螺旋軸之間采用法蘭式聯接,保證了聯接軸的互換性,便于維修。機蓋為瓦片式并用蓋扣夾緊在機殼上,若需改進密封性能,用戶可自行在機蓋與機殼間加防水粗帆布。
進、出料裝置有進料口,方型出料口,手推式出料口,齒條式出料口四種。由用戶在使用現場在機體上開口焊接。布置進、出料口位置時應注意保證料口至端部的距離,同時避免料口與吊軸承加油杯、機殼聯接法蘭、底座等相碰。驅動裝置有ZQ系列減速器+Y系列電動機,YTC齒輪減速電機兩種。

管式螺旋輸送機利用旋轉的螺旋將被輸送的物料沿固定的機殼內推移而進行輸送工作,頭部及尾部軸承移至殼體外,吊軸承采用滑動軸承設有防塵密封裝置,軸瓦一般采用粉末冶金,輸送水泥采用毛氈軸瓦,吊軸和螺旋軸采用滑塊連接。

| LS型 | 100 | 160 | 200 | 250 | 315 | 400 | 500 | 630 | 800 | 1000 | 1250 |
| GX型 | 200 | 250 | 300 | 400 | 500 | ||||||
| 螺旋直徑(mm) | 100 | 160 | 200 | 250 | 315 | 400 | 500 | 630 | 800 | 1000 | 1250 |
| 螺距(mm) | 100 | 160 | 200 | 250 | 315 | 355 | 400 | 450 | 500 | 560 | 630 |
| 轉速(r/min) | 140 | 120 | 90 | 90 | 75 | 75 | 60 | 60 | 45 | 35 | 30 |
| 輸送量QΦ=0.33(m3/h) | 2.2 | 7.6 | 11 | 22 | 36.4 | 66.1 | 93.1 | 160 | 223 | 304 | 458 |
| 功率Pd 1=10m(KW) | 1.1 | 1.5 | 2.2 | 2.4 | 3.2 | 5.1 | 4.1 | 8.6 | 12 | 16 | 24.4 |
| 功率Pd 1=30m(KW) | 1.6 | 2.8 | 3.2 | 5.3 | 8.4 | 11 | 15.3 | 25.9 | 36 | 48 | 73.3 |
| 轉速(r/min) | 120 | 90 | 75 | 75 | 60 | 60 | 45 | 45 | 35 | 30 | 20 |
| 輸送量QΦ=0.33(m3/h) | 1.9 | 5.7 | 18 | 18 | 29.1 | 52.9 | 69.8 | 125 | 174 | 261 | 305 |
| 功率Pd 1=10m(KW) | 1.0 | 1.3 | 2.1 | 2.1 | 2.9 | 4.1 | 4.7 | 6.8 | 9.4 | 14.1 | 16.5 |
| 功率Pd 1=30m(KW) | 1.5 | 2.3 | 4.5 | 4.5 | 7 | 8.9 | 11.6 | 20.4 | 28.3 | 42.2 | 49.5 |
| 轉速(r/min) | 90 | 75 | 60 | 60 | 45 | 45 | 35 | 35 | 30 | 20 | 16 |
| 輸送量QΦ=0.33(m3/h) | 1.4 | 4.8 | 15 | 15 | 21.8 | 39.6 | 54.3 | 97 | 149 | 174 | 244 |
| 功率Pd 1=10m(KW) | 0.9 | 1.2 | 1.9 | 1.9 | 2.5 | 3.4 | 4.3 | 5.4 | 8.1 | 9.5 | 13.3 |
| 功率Pd 1=30m(KW) | 1.2 | 2.2 | 3.8 | 3.8 | 5.4 | 6.8 | 9.2 | 16 | 24.4 | 28.6 | 39.9 |
| 轉速(r/min) | 75 | 60 | 45 | 45 | 35 | 35 | 30 | 30 | 20 | 16 | 13 |
| 輸送量QΦ=0.33(m3/h) | 1.2 | 3.8 | 11 | 11 | 17 | 31.7 | 46.5 | 73.0 | 99.3 | 139 | 199 |
| 功率Pd 1=10m(KW) | 0.75 | 1.1 | 1.6 | 1.6 | 2.1 | 3.1 | 3.7 | 4.6 | 5.7 | 7.7 | 11 |
| 功率Pd 1=30m(KW) | 1.1 | 1.8 | 3.4 | 3.4 | 4.4 | 5.6 | 8 | 14 | 16.7 | 23.2 | 33 |
GX型:螺旋直徑共有150、200、250、300、400、500、600mm等七種規格,機身較短為3m,較長可達70m,級差為0.5m,根據不同現場需要可組成相應輸送系統,用于水平或傾角小于20°的單向輸送。
LS型:LS型螺旋輸送機是GX型螺旋輸送機的換代產品,螺旋直徑為100~1250mm,共計有十一種規格,驅動方式有單端驅動和雙端驅動兩種形式;LS型螺旋給料機身長度每0.5m一檔,根據不同現場需要可組成相應輸送系統,與GX型螺旋輸送機一樣,用于水平或傾角小于20°的單向輸送。

| 規格型號 | F | E | W | L | L1 | L3 | G | L | Q | Y | N | K |
| LS100 | 2500 | 2500 | 2500 | 2480 | 2500 | 2640 | 1500 2000 2500 |
500 2000 2500 |
180 | 180 | 63 | 112 |
| LS160 | 2500 | 2500 | 2500 | 2480 | 2500 | 2640 | 200 | 180 | 90 | 150 | ||
| LS200 | 2500 | 2500 | 2500 | 2480 | 2500 | 2640 | 225 | 180 | 112 | 180 | ||
| LS250 | 3000 | 3000 | 3000 | 2980 | 3000 | 2140 | 250 | 200 | 140 | 224 | ||
| LS315 | 3000 | 3000 | 3000 | 2980 | 3000 | 2140 | 330 | 220 | 180 | 280 | ||
| LS400 | 3000 | 3000 | 3000 | 2980 | 3000 | 2140 | 350 | 227 | 224 | 355 | ||
| LS500 | 3000 | 3000 | 3000 | 3000 | 3000 | 3160 | 2000 2500 3500 |
2000 2500 3500 |
400 | 250 | 280 | 400 |
| LS630 | 3000 | 3000 | 3000 | 3000 | 3000 | 3160 | 450 | 300 | 355 | 500 | ||
| LS800 | 3000 | 3000 | 3000 | 3000 | 3000 | 3160 | 550 | 340 | 450 | 630 | ||
| LS1000 | 3000 | 3000 | 3000 | 3000 | 3000 | 3160 | 650 | 360 | 560 | 710 | ||
| LS1000 | 3000 | 3000 | 3000 | 3000 | 3000 | 3160 | 800 | 380 | 710 | 800 | ||
| 規格型號 | R | S | Z | 0 | H | V | J | P | T |
| LS100 | 180 | 112 | 40 | 178 | 120 | 160 | 14 | 60 | 163 |
| LS160 | 200 | 150 | 50 | 266 | 120 | 160 | 14 | 60 | 190 |
| LS200 | 225 | 180 | 60 | 320 | 160 | 200 | 14 | 60 | 212 |
| LS250 | 250 | 224 | 70 | 370 | 200 | 230 | 16 | 60 | 240 |
| LS315 | 390 | 250 | 80 | 443 | 300 | 350 | 20 | 60 | 340 |
| LS400 | 390 | 280 | 90 | 533 | 320 | 400 | 24 | 60 | 384 |
| LS500 | 400 | 340 | 105 | 653 | 400 | 500 | 24 | 80 | 440 |
| LS630 | 450 | 420 | 120 | 790 | 500 | 630 | 24 | 80 | 555 |
| LS800 | 550 | 520 | 135 | 970 | 632 | 800 | 30 | 80 | 650 |
| LS1000 | 850 | 630 | 150 | 1100 | 710 | 1000 | 30 | 80 | 760 |
| LS1000 | 800 | 760 | 170 | 1440 | 800 | 1250 | 30 | 80 | 910 |

| 參數 | LS160 | LS200 | LS250 | LS315 | LS400 | LS500 | LS630 | LS800 | LS1000 | LS1250 |
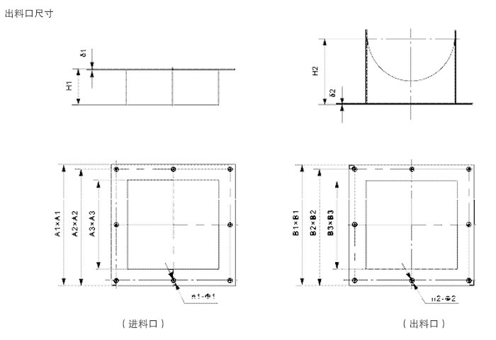
| A1 | 246 | 306 | 356 | 444 | 528 | 658 | 794 | 960 | 1160 | 1410×1160 |
| A2 | 226 | 272 | 330 | 394 | 492 | 608 | 752 | 888 | 1090 | 1338×1090 |
| A3 | 180 | 220 | 270 | 334 | 420 | 524 | 660 | 800 | 1000 | 1250×1000 |
| H1 | 75 | 100 | 120 | 140 | 160 | 160 | 180 | 180 | 200 | 200 |
| ?1 | 3 | 3 | 3 | 4 | 4 | 4 | 6 | 6 | 8 | 8 |
| n1 | 8 | 8 | 8 | 8 | 8 | 8 | 8 | 16 | 20 | 22 |
| φ1 | 9 | 9 | 9 | 13 | 13 | 13 | 17 | 14 | 18 | 18 |
| B1 | 252 | 312 | 374 | 442 | 540 | 666 | 806 | 960 | 1160 | 1410×1160 |
| B2 | 226 | 272 | 330 | 402 | 496 | 608 | 752 | 888 | 1090 | 1338×1090 |
| B2 | 186 | 226 | 276 | 342 | 432 | 532 | 668 | 800 | 1000 | 1250×1000 |
| H2 | 135 | 165 | 195 | 225 | 280 | 340 | 430 | 520 | 630 | 760 |
| ?2 | 3 | 3 | 4 | 4 | 4 | 4 | 6 | 6 | 8 | 8 |
| n2 | 8 | 8 | 8 | 8 | 8 | 8 | 8 | 16 | 20 | 22 |
| φ2 | 9 | 9 | 9 | 3 | 163 | 17 | 17 | 14 | 18 | 18 |
| R | 93 | 113 | 138 | 171 | 216 | 266 | 334 | 419 | 522 | 647 |

材質:可根據輸送物料選用碳鋼或不銹鋼材質。

傾角:可根據用戶要求水平或大傾角設計,LS型傾角為≤15°,大于20°可選用GX管式螺旋輸送機,傾角為≤45°,無軸的管式螺旋輸送機角度為30°。

輸送長度:直徑由100mm~1250mm,共十二種規格,分為單驅動和雙驅動兩種形式,單驅動螺旋機長度可達40米(特大型30米),雙驅動螺旋機采用中間斷開軸結構,長度可達80米(特大型60米),螺旋機長度每 0.5米。 一檔,可根據需要選擇。
輸送方向:能逆向輸送,也可使一臺輸送機同時向兩個方向輸送物料,即集向中心或遠離中心。
大漢管式螺旋輸送機廠家是一家專業從事輸送設備制造和定制的企業,擁有多年的行業經驗和技術積累。我們致力于為客戶提供高品質、高效率的輸送解決方案,滿足不同行業的物料輸送需求。
管式螺旋輸送機視頻
我們的優勢
專業團隊:擁有經驗豐富的工程師和技術人員,能夠根據客戶需求提供定制化的設計方案。
優質設備:采用先進的生產設備和工藝,確保產品質量穩定可靠。
多樣化產品:提供各種規格和型號的管式螺旋輸送機,滿足不同物料輸送的需求。
我們的產品特點
采用先進的輸送技術,實現高效率的物料輸送。
產品運行穩定可靠,減少生產過程中的故障和停機時間。
適用于不同行業和工藝要求,具有較強的適應性。
設計符合環保標準,減少能源消耗和物料泄漏。
如果您正在尋找可靠的管式螺旋輸送機廠家,大漢管式螺旋輸送機廠家將是您的理想選擇。歡迎聯系我們,我們將竭誠為您提供專業的服務和優質的產品。
新鄉大漢作為直銷型生產廠家,有自己的銷售人員與客戶進行直接交流,整個銷售過程簡單、透明,給客戶的價格都是設備的出廠價,其設備價格便宜。
在服務商,我們可以為客戶提供設備的安裝、調試、操作培訓、維修及保養等一站式服務,還有售后團隊,不論節假日都有值班人員24小時為客戶服務,并且還可為客戶提供定制服務,具體詳情可免費撥打咨詢熱線:0373-2682333.
管式螺旋輸送機價格受多個因素影響,具體價格需要根據您的實際需求進行報價。

參考價格:管式螺旋輸送機價格一般在3200-40000元不等。
小型管式螺旋輸送機(長度小于5米,輸送量較小):價格在幾千元之間。
中型管式螺旋輸送機(長度5-15米,輸送量中等):價格在幾萬元之間。
大型管式螺旋輸送機(長度超過15米,輸送量較大):價格在十幾萬元甚至更高。
以下列舉一些影響價格的主要因素:
1. 輸送機尺寸:輸送機長度越長,價格越高。輸送機直徑越大,價格越高。
2. 輸送量:輸送量越大,需要更大的電機功率,價格越高。
3. 物料特性:輸送物料的腐蝕性、溫度、易燃易爆性等都會影響機殼材質和設計,進而影響價格。
4. 材質:不銹鋼、碳鋼等不同材質價格差異較大,不銹鋼材質的價格更高。耐磨、耐腐蝕材料價格也較高。
5. 傳動方式:電機功率越大,價格越高。不同類型的減速器價格差異較大。
6. 其他因素:例如進料口、出料口、清掃裝置等附件,都會影響價格。
獲取準確報價:
建議您聯系我們的生產廠家,并提供以下信息:
輸送機長度、直徑
輸送量
輸送物料
材質要求
控制系統需求
安裝方式
廠家會根據您的實際需求,為您提供詳細的報價和技術方案。

Copyright ? 2008-2025 螺旋輸送機廠家-新鄉市大漢振動機械有限公司 All Rights Reserved 版權所有
網站備案號:豫ICP備09002479號-47
網址:http://www.hbxyxc.com.cn/新鄉大漢機械廠家專業生產螺旋輸送機、皮帶輸送機、提升機等機械







